HOUSES | TIBURON HOUSE

Andrea Ponsi, Luca Ponsi, Studio Ponsi, Firenze, 2019

English

BUY ON STUDIOPONSIDESIGN.IT

ISBN 978-0464322245

Monographic book of the Houses series by Studio Ponsi.

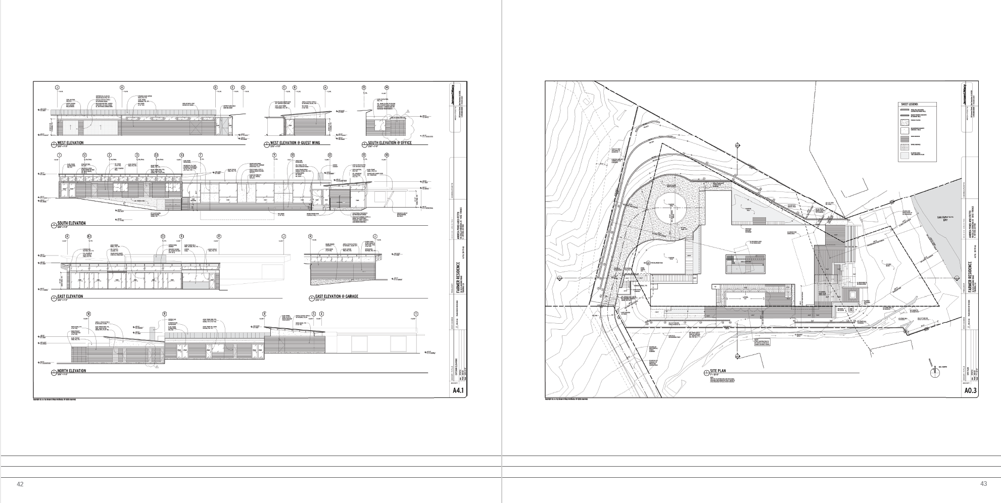
Tiburon House, San Francisco, 2005-2008

“The house of the four horizons”: this is how we may define this building, whose plan is the result of movements of contraction and expansion towards the four cardinal points, in search of a harmonious relationship between interior and exterior. The core of the house is an empty space, an inner court surrounded by a glazed gallery; the wings of the house spread out from this point, four rectangular pavilion whose autonomy is accentuated by the single-slope copper roofs. One pavilion houses guest rooms, another bathrooms and garage, while the other two contain master bedrooms and living area. The latter features a wall of sliding glass doors, which open to a wooden platform that gradually descends to the beach. The building is completely autonomous from an energetic point of view. As an alternative to air conditioning, natural ventilation is guaranteed by the large sliding doors and the internal court, designed as thermal compensation area.

 

RELATED NEWS: